
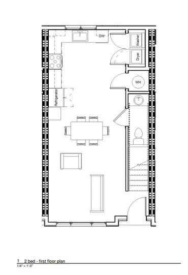
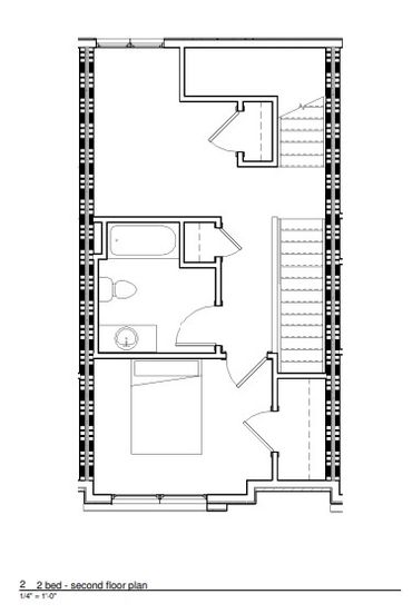
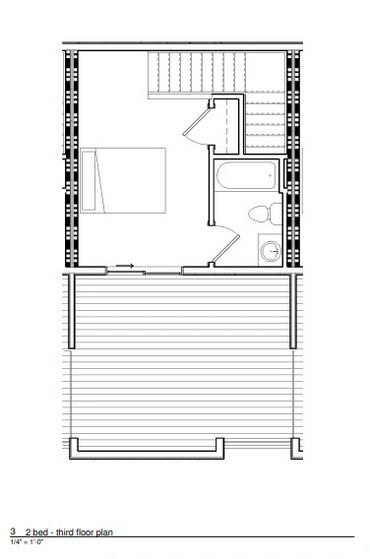
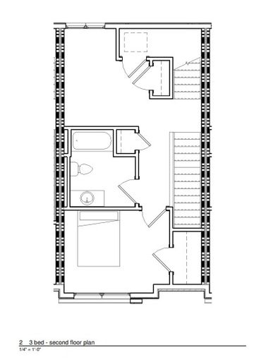
Avenue Construction’s latest offering is a blend of modern luxury and affordability in this 29-unit development. Located in the rapidly growing NASHVILLE RIVER DISTRICT, which is being described as ’the best area to invest’ in Music City, Bentley Ridge is less than 10 minutes from downtown and directly across from Nashville’s new & exciting Riverside project.
Highlights:






Pre-Selling Units 2-5!
